CAD图纸
施工图
体育运动
公共交通
公共服务
商业空间
生活服务
办公空间
教育机构
文化服务
娱乐场所
行政服务
公共建筑
住宅图纸
节点大样图
市政园林
幕墙
钢结构
卫生间
地面
墙面
天花
结构
楼梯
门窗
消防
栏杆
柱子
线条
其他
图库
家装图库
工装图库
园林景观
人体工程学+尺寸
常规尺寸
布局尺寸
玄关
客厅
餐厅
卧室
厨房
卫生间
阳台
通道
公共区域
物体尺寸
船
电器
徽章
车辆
摩托车
火车
汽车
工程车
自行车
飞机
军事
家具
中式家具
西式家具
常用家具
生活用品
音乐器具
健身器材
体育用品
动植物
动物
植物
无障碍
人体尺寸
卫生间
通道
其他
公共尺寸
自学课程
CAD工具
CAD插件
CAD转换
规范+指南
国家规范
给排水专业
建筑专业
暖通专业
电气专业
结构专业
规范专业
防火专业
设计指南
免费下载专区
热门搜索
隐形晾衣架
洗手池
悬浮层板置物架(7个大样图)
施工图
农贸市场
无障碍
人体工程学
汽车尺寸
平面图
住宅
卫生间
客厅
餐桌
电器
登录/注册
热门搜索
隐形晾衣架
洗手池
悬浮层板置物架(7个大样图)
施工图
农贸市场
无障碍
人体工程学
汽车尺寸
平面图
住宅
卫生间
客厅
餐桌
电器
工艺学社上传人
门窗
2024-06-26
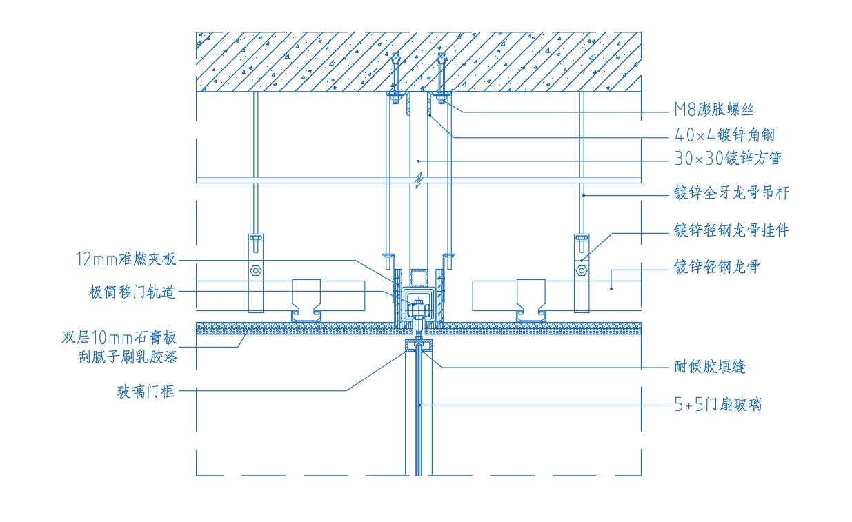
极简玻璃推拉门(单轨道)
推拉门#极简移门#折叠门#玻璃屏风#玻璃门#天花造型#天花轨道#吊轨#
华建工艺学会
»
极简玻璃推拉门(单轨道)
上一篇
卫生间超薄隔墙大样图
下一篇
极简玻璃推拉门(多轨道)
发表评论
取消回复
昵称*
E-mail*
网站
下次发表评论时,请在此浏览器中保存我的姓名、电子邮件和网站
相关推荐
玻璃隔断门
极简玻璃推拉门(多轨道)
玻璃门
现代门扇立面图(十)